ADDRESS
1468 Northern Blvd
Manhasset, NY 11030
Due to the health concerns created by Coronavirus we are offering personal 1-1 online video walkthough tours where possible.




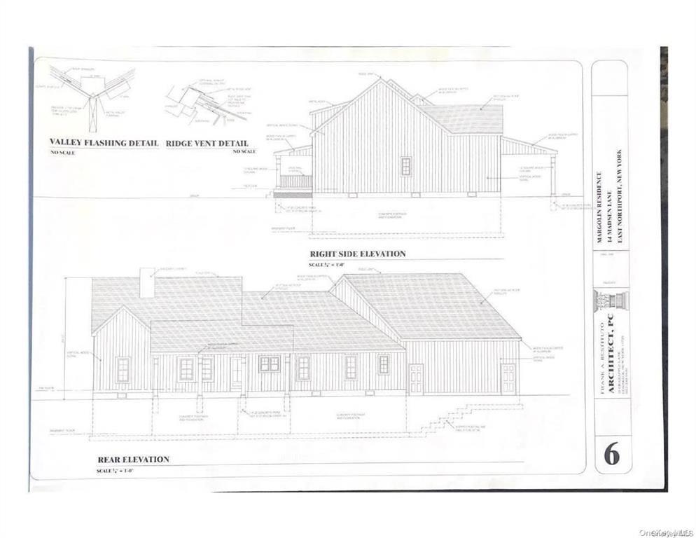
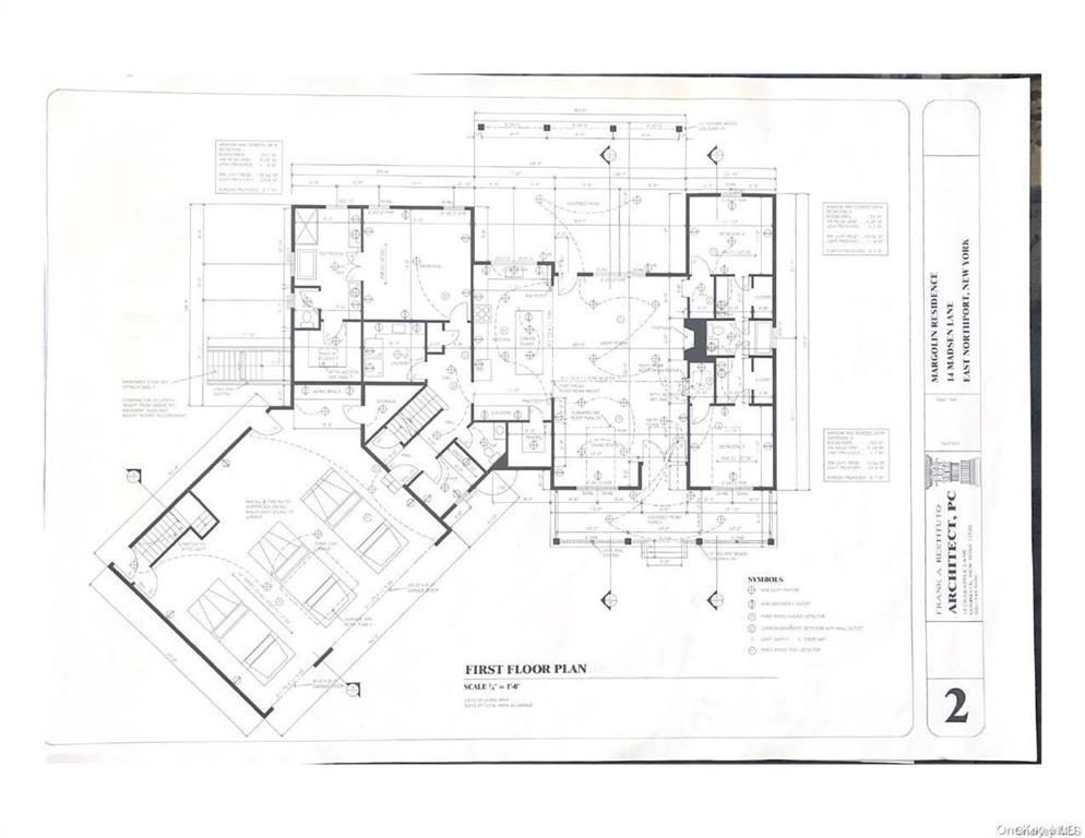
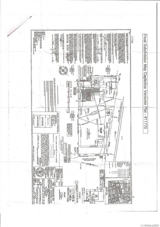
Buildable 0.46 Acre Lot with building plans at end of Madsen Lane. Board of Health Approved, Surveyed, Waterline. Incredibly low taxes. Opportunity to build New Construction in private East Northport suburban setting. Description of Plans Included: Sprawling fully customizable New England Ranch. Architects custom designed plan includes modern amenities, high-end materials and finishes. Overbuilt Chef's Kitchen includes energy efficient smart appliances, oversized Island, Walk-in Pantry, dedicated Dining Room and spacious Great Room with Fireplace to create communal open Entertainer's space in the heart of the home. Dedicated Primary Wing and Suite. All Bedrooms with Walk-in Closets. 3 Car Garage, Full 2,310 square foot Basement. Dedicated Office. Dedicated Laundry room. Tool and Storage room. Covered Patio and deck. Walk to Train. Northport-East Northport SD. One of a kind opportunity to own New Construction in East Northport.
| 7 months ago | Listing first seen on site | |
| 7 months ago | Listing updated with changes from the MLS® |
Did you know? You can invite friends and family to your search. They can join your search, rate and discuss listings with you.