ADDRESS
1468 Northern Blvd
Manhasset, NY 11030
Due to the health concerns created by Coronavirus we are offering personal 1-1 online video walkthough tours where possible.




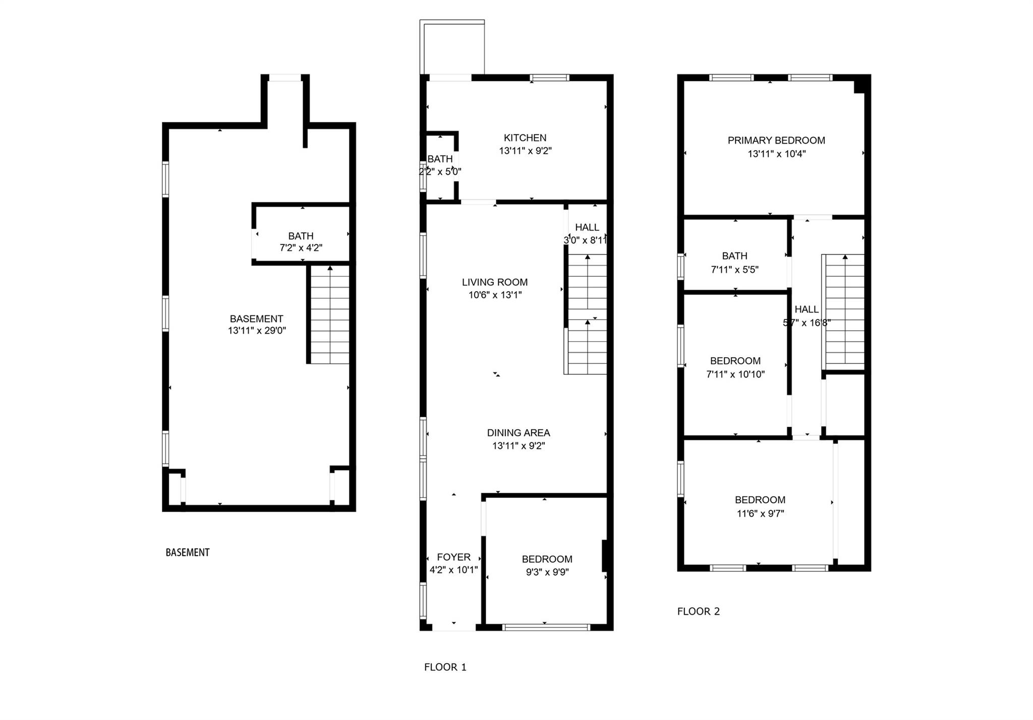
This stunning single-family home features 4 bedrooms and 2 full baths and 1 half bath, designed for modern living. Bright and airy, the space is bathed in natural light through numerous windows. The newly installed boiler ensures warmth during winter months, and the finished basement adds extra space. Recent renovations reflect a sleek and elegant style. The separate entrance design provides privacy and convenience. A private yard offers space for outdoor enjoyment, and a private garage facilitates easy parking. Located in a desirable area with easy access to public transportation and nearby shopping, the semi-detached brick structure makes it a perfect sanctuary.
| 4 months ago | Status changed to Pending | |
| 4 months ago | Listing updated with changes from the MLS® | |
| 5 months ago | Listing first seen on site | 
Did you know? You can invite friends and family to your search. They can join your search, rate and discuss listings with you.